Realizacje

Realizacja Polmlek Lidzbark Warmiński

Czas realizacji: 2015 - 2016

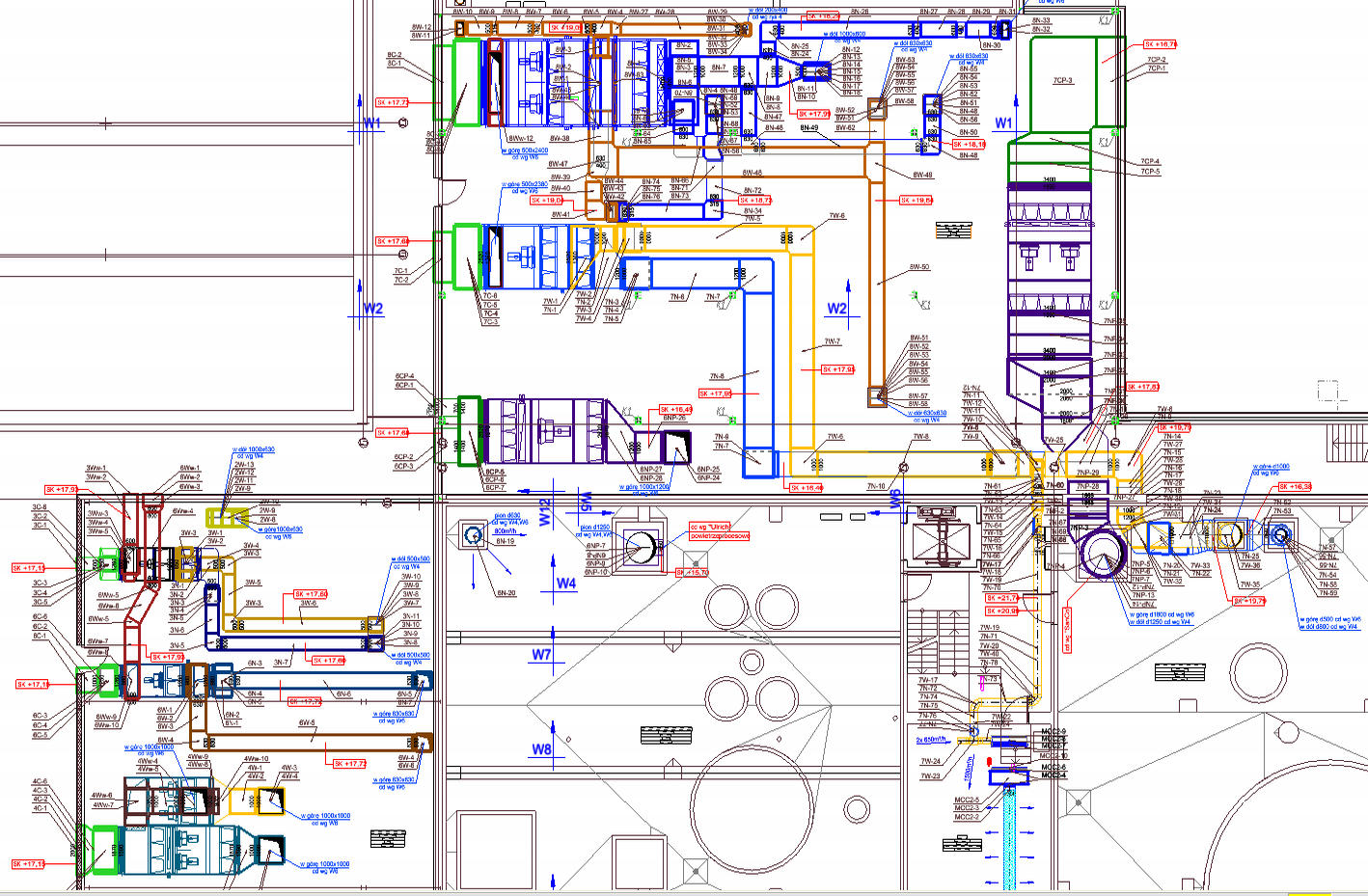
Opis: Proszkownia mleka
Projekt instalacje wentylacji i klimatyzacji oraz powietrza procesowego dla proszkowni mleka

Zdjęcia(sztuk: 3)